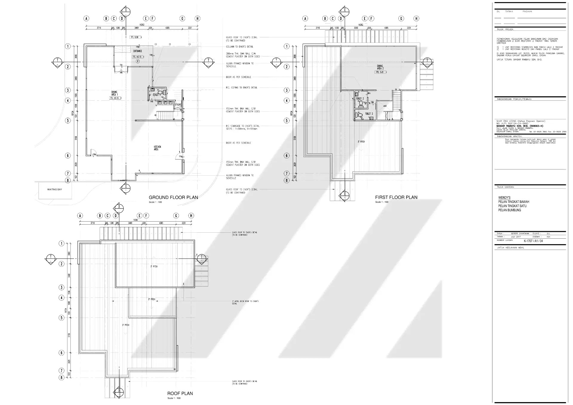
Restaurants & Drive-thru, Selangor, MYS

Restaurant and Commercial units, Completed.

Project Management, Technical Drawing.

Developed generic floor plan and design.

Create your website for free! This website was made with Webnode. Create your own for free today! Get started