MBAM Head Quarter, MYS
Office Head Quarter, Building Conversion, Planning Application.
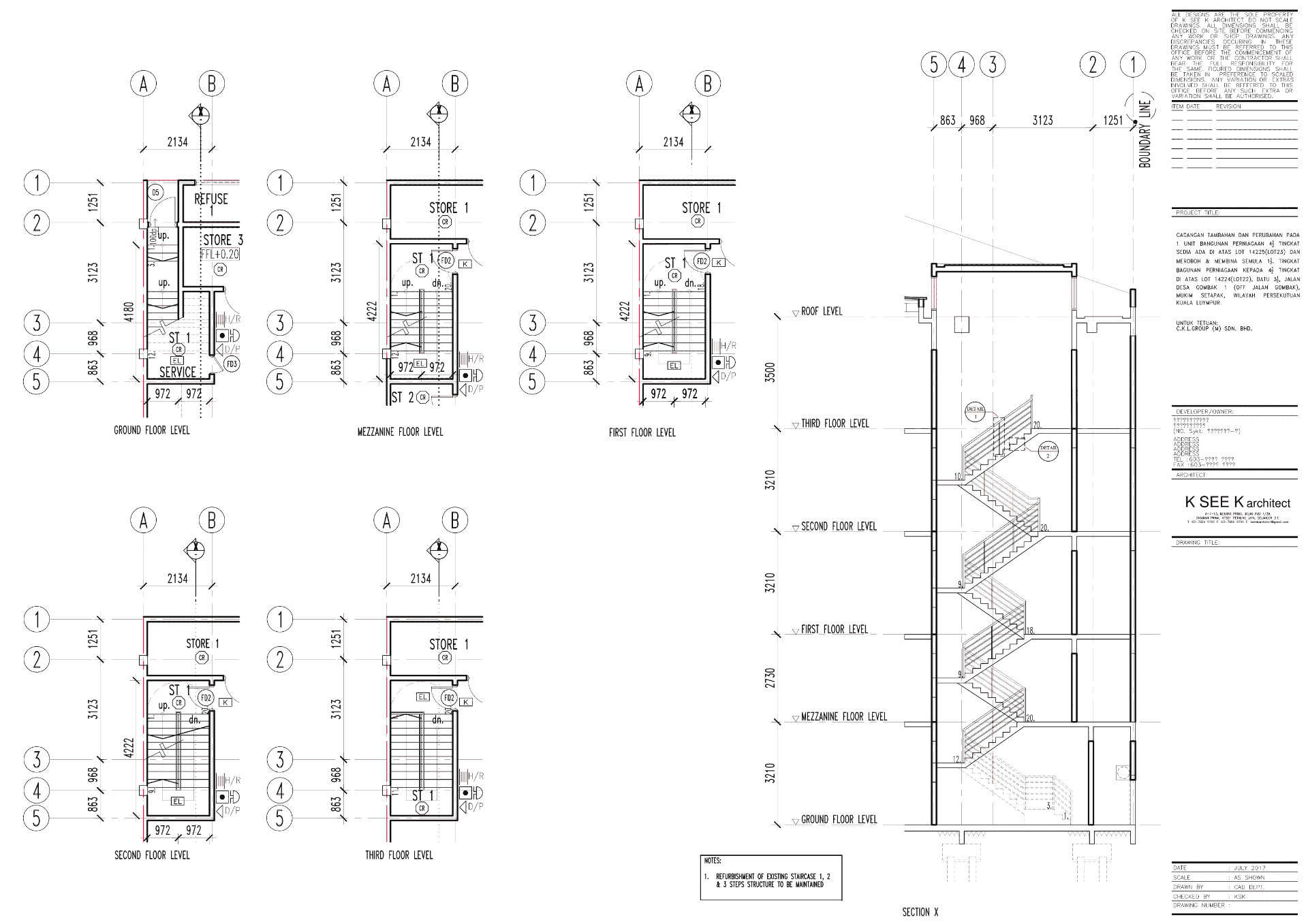
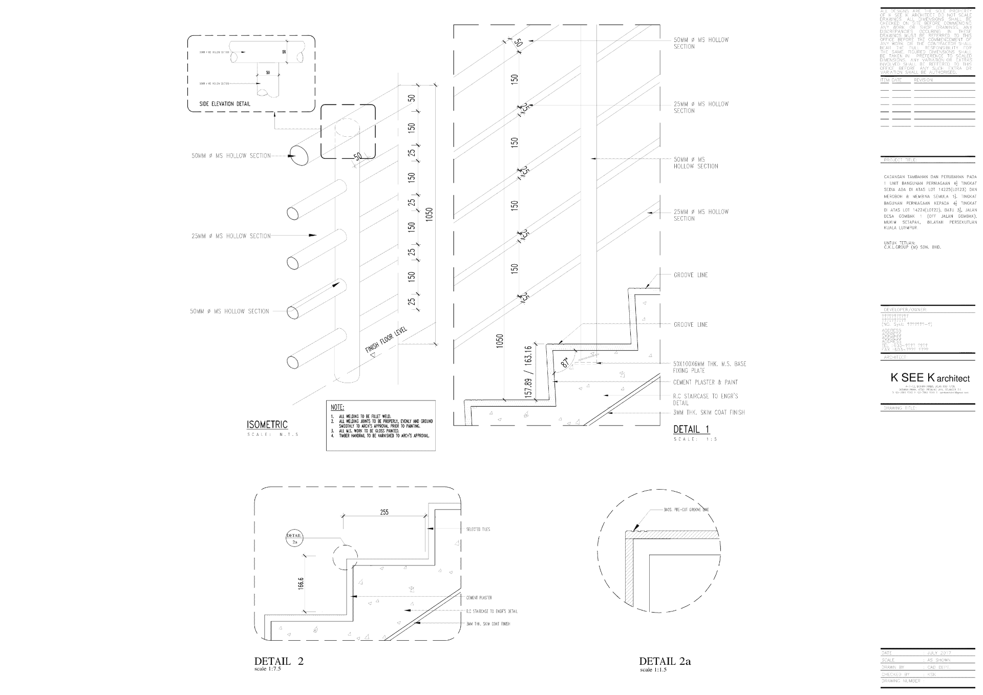
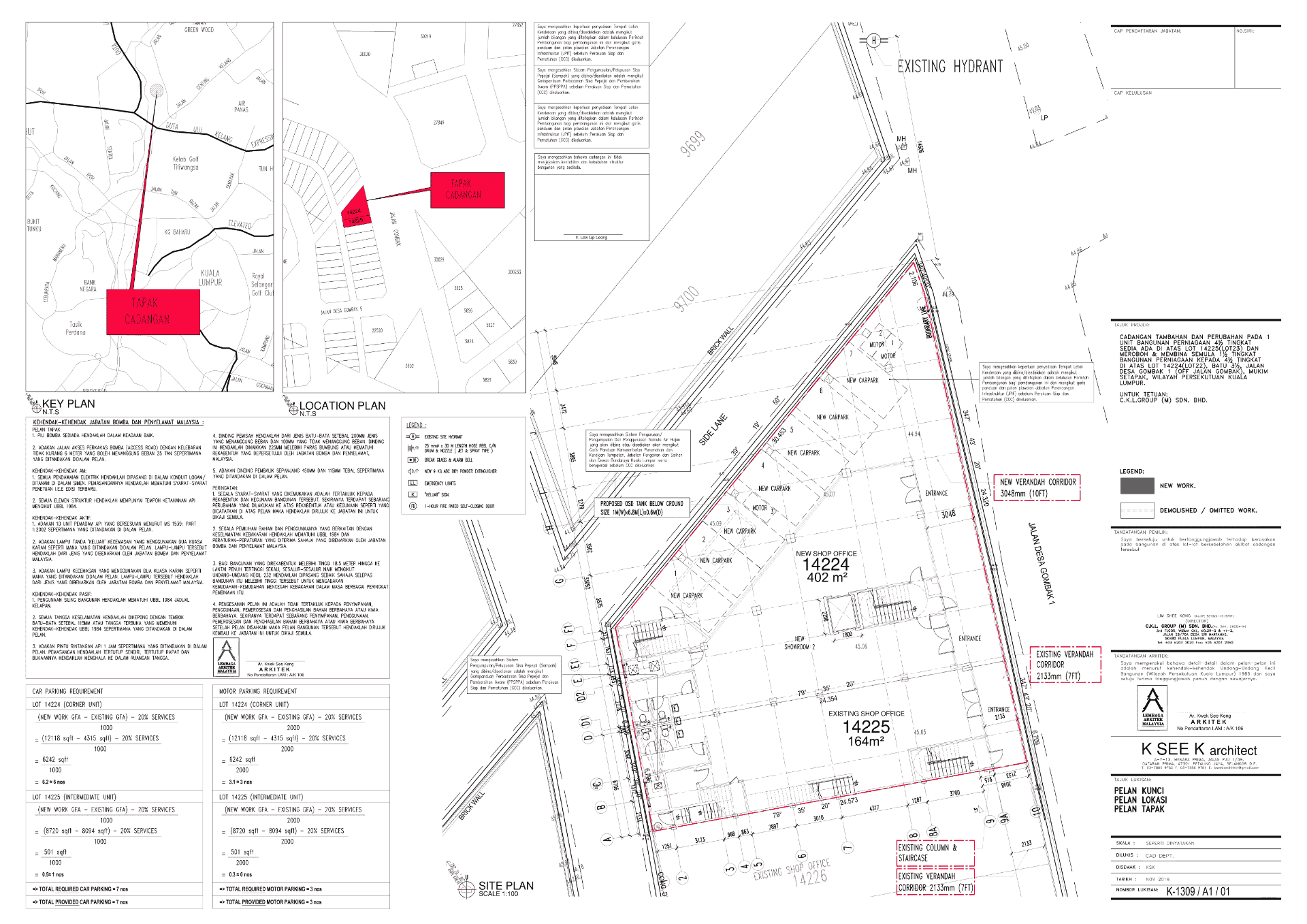
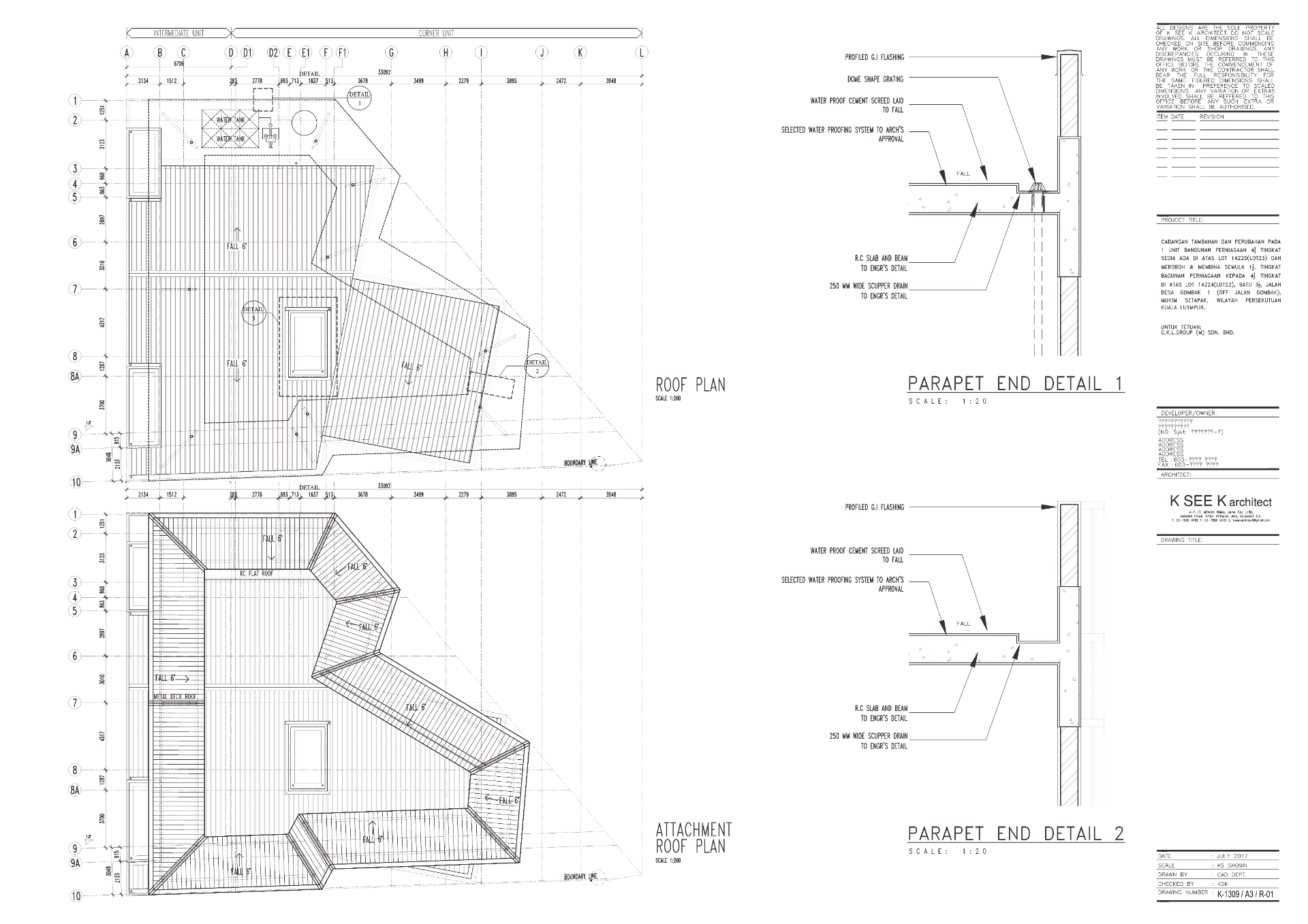
Technical Drawing, 3D Modelling.
Design a conversion of a car workshop into a functional office building. Prepared the majority of technical drawings and schedules, including basic documentation for custom roofing solutions and louver features.










