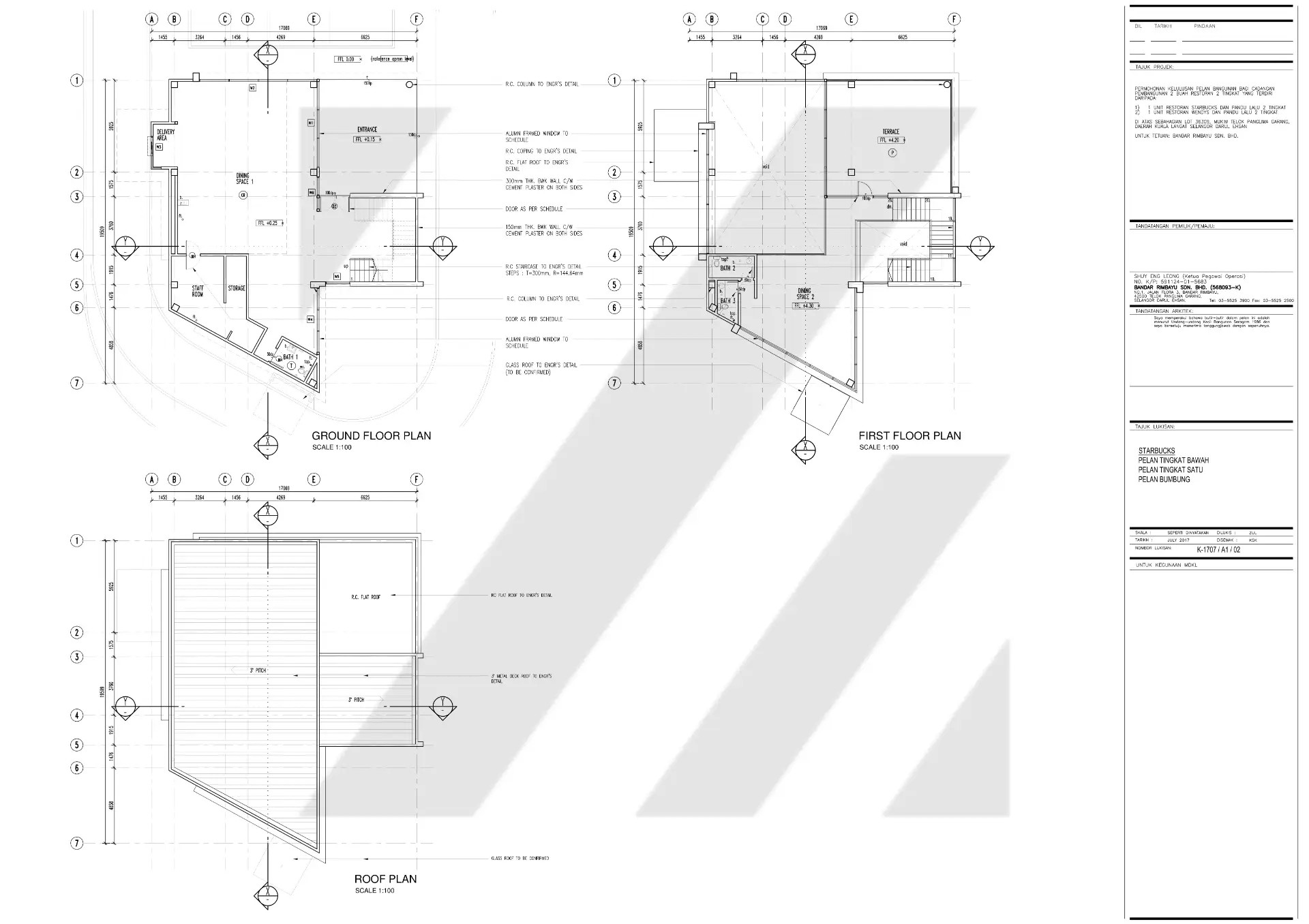
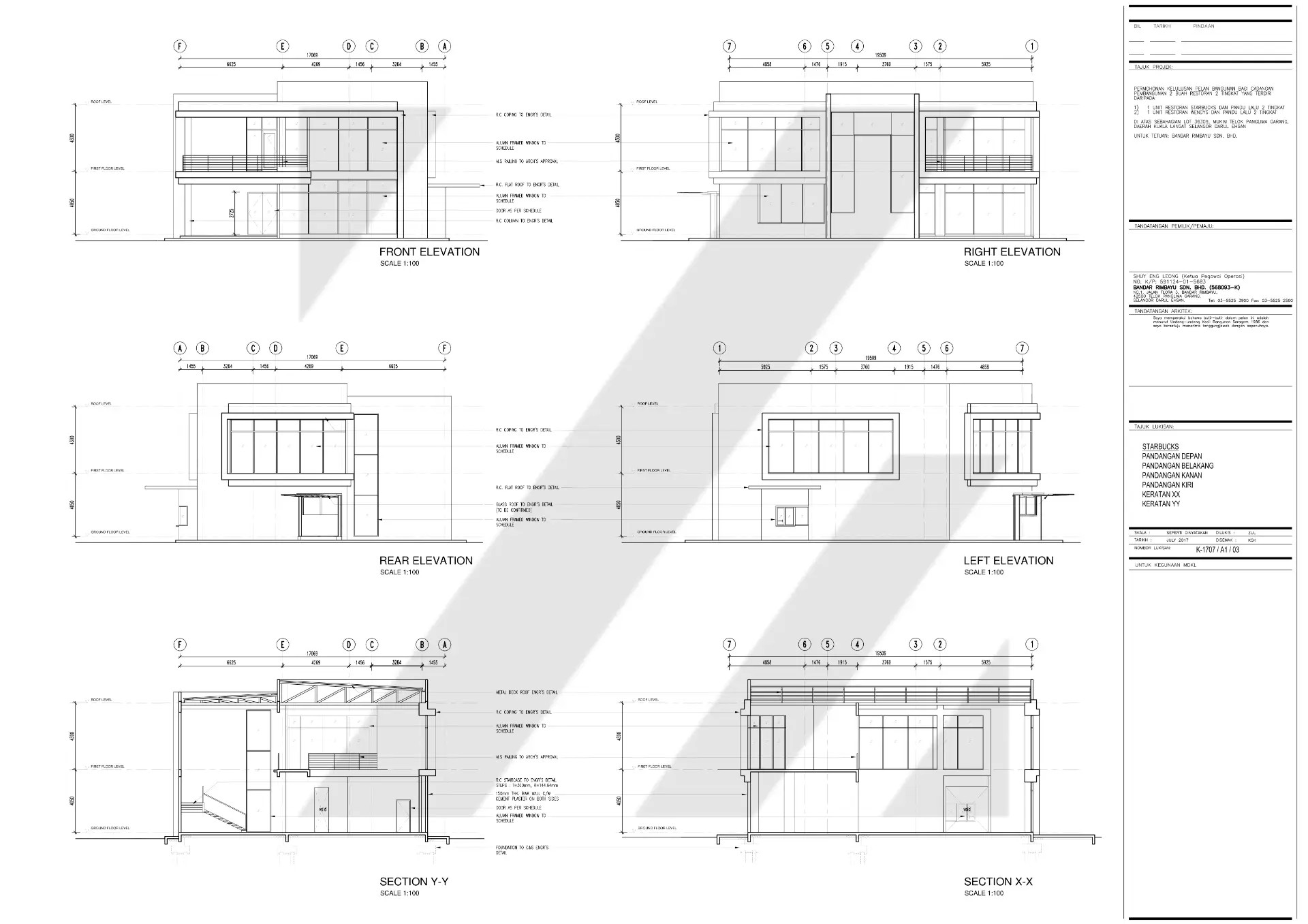
Bandar Rimbayu Starbucks Cafe & Drive-thru, Selangor, MYS

Restaurant, Completed.

Project Management, Technical Drawing, Liaising with client.

Developed floor plan and design in accordance with Starbucks' guideline specifications.

Create your website for free! This website was made with Webnode. Create your own for free today! Get started